Kubota & Bachmann Architects
Information
contact
projects
Alicante Congress Center
Aitex_underconstruction
Renovation Private House
Riga Philharmonic
New Lucerne Theather
Energy-efficient facade
Bern University
Champagne school
Lausanne University
Alcoy Culture Center
Embassy of Switzerland
Bernex University
MHNF in Frigourg
Dar Al Uloum Library
Kaunas Concert Center
AITEX Textile Research Institute
ITU
Benitatxell Theater
AWEL Zurich
The New Cypus Museum
Science Island
Swiss Design
Housing in Desert
MOB CUSTUM
Empa OST/DUB
Miyajima-guchi Project
Architektur 0.14
New ETHZ D-BSSE
Biomedicine
Secture A of PDQ Concorde
“Russian Character”
Collection Center Extension
Guggenheim Helsinki
NCCA
New Control Tower Airport
The New National Gallery and Ludwig Museum
Hotel Park and Seeallee Heiden
Taichung City Cultural Center
Next Generation Container Port
Ebisu 21 Appartments / 1st phase
Ebisu 21 Appartments
Berlin CentralLibrary
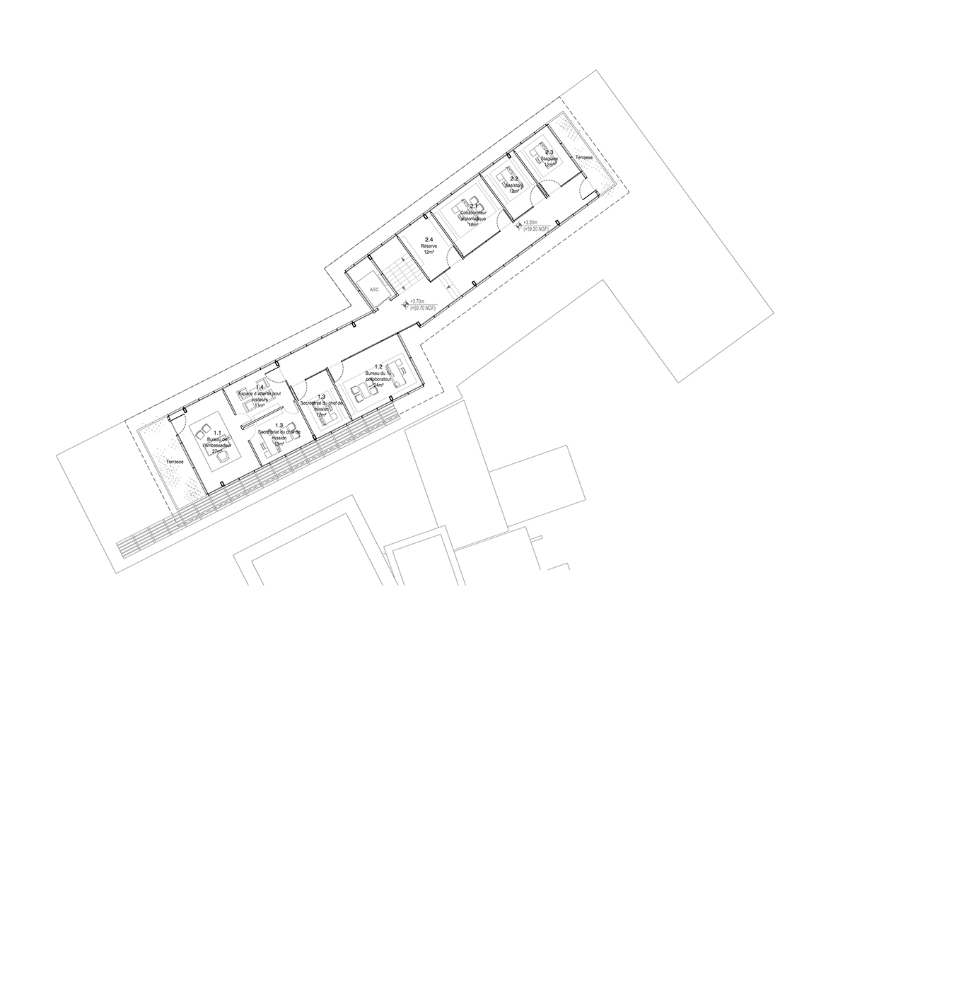
New Swiss Embassy in Seoul
Rikuzen Takada Junior high school
Klaksvík City Center
New Primary School Erlenmatt
Europan 11 / BIO DIVERCITY
Helsinki Central Library
Busan Opera House
New Taipei City Museum of Art
Maritime Culture & Pop Music Center
SERLACHIUS MUSEUM GÖSTA
Port and Cruise Service Center
Maribor Art Gallery
Europan 10
Urbain Composition
Seoul Performing Arts Center
New Swiss Embassy in Seoul
Seoul, South Korea
2012
Seoul, South Korea
2012
Program
Offices and Headquarters
Building Seize
1 020m²
Offices and Headquarters
Building Seize
1 020m²


