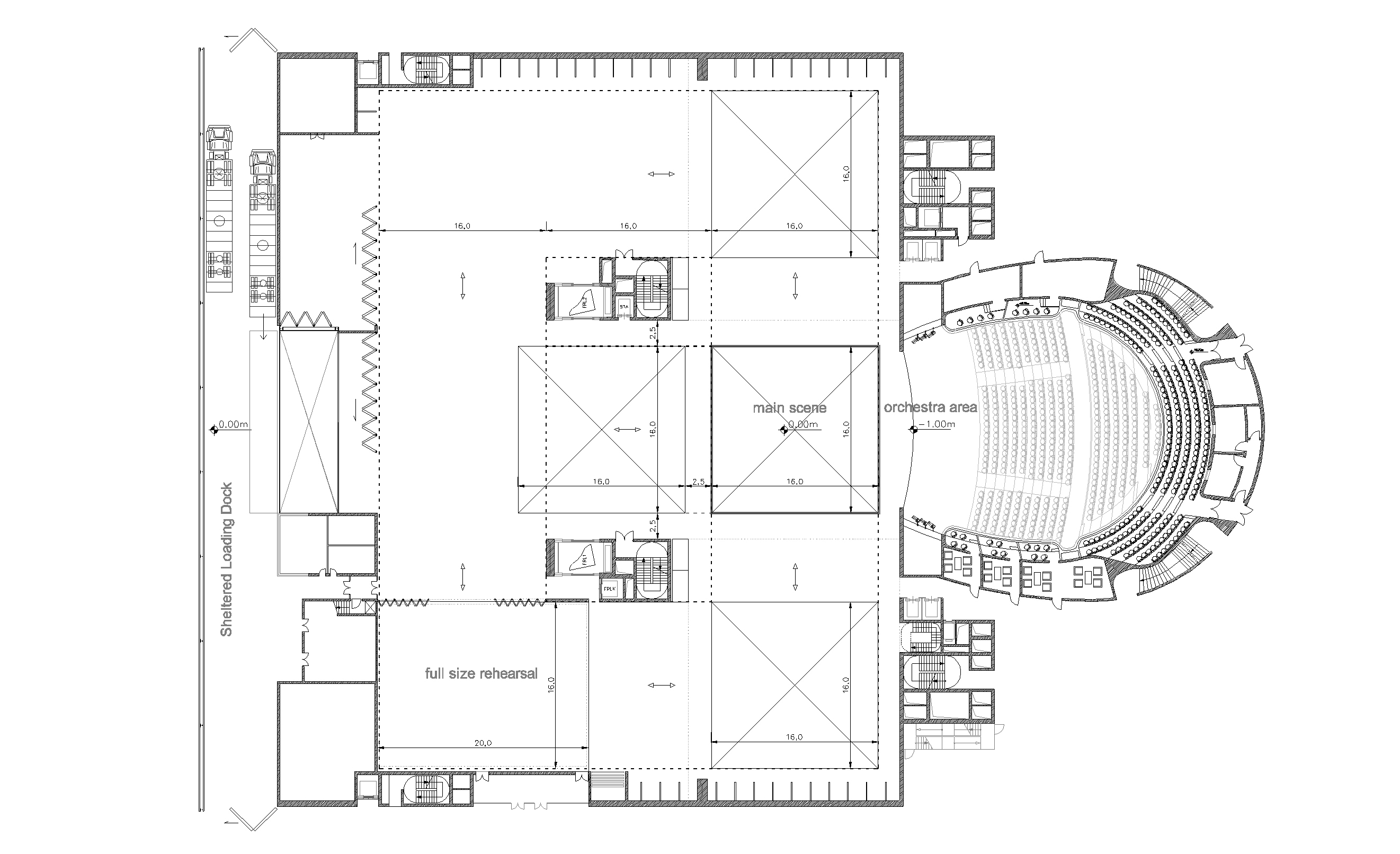
Seoul Performing Arts Center
Seoul, south Korea
2005-2006
Seoul, south Korea
2005-2006
Program
Culture
Building Seize
54 278 m²
Culture
Building Seize
54 278 m²






1st Stage Team
Designer
Toshihiro KUBOTA
Architects
Anna Ranova LUNDSTROM
Stefan MATTHYS
Matthieu Puyaubreau
Perspectives
Eric ANTON
Mizuho KISHI
2nd Stage Team
Designer
Toshihiro KUBOTA
Partner
Anna Ranova LUNDSTROM
Stefan MATTHYS
Local Architect Associate
GAMSAM
Architects
Muchan PARK (Gamsam)
Internship
Camille CUCHET
Perspectives
Cyrille THOMAS
Acoustic Engineer
NAGAGA Acoustics
Structure Engineer
ARUP
Facade engineer
RFR
Theater Consultant
Changement a Vue
Model
Model & co
and thank you for Sony and Etsuko